• 91免费视频网站,91免费网站入口,91免费下载链接,91免费版网站入口

    联系91免费视频网站
    ContactMore..
    联系91免费视频网站

    新乡市91免费视频网站机械有限公司

    电话:0373-3337678  0373-2685893

    传真:0373-2685891

    售后专线:0373-3331988

    联系人:杨经理

    手机:13346662168

    信箱:81350373@qq.com

    地址:新乡市卫滨区工业园

    点击这里给我发消息 点击这里给我发消息

    当前位置:振动筛分机 > 振动筛应用 >
    移动式振动筛

    移动式振动筛

  • 类 型:振动筛应用
  • 点 击:0
  • 型 号:
  • 亮 点:
  • 点击在线咨询91免费视频网站机械客服人员
  • 产品介绍
    用良心做产品 用真心做服务!91免费视频网站机械——您正确的选择!
    移动式振动筛概述:
           移动式振动筛是常见的轻型筛分设备,所以很多用户直接称其为移动式振动筛,也有部分地区用户或移动式振动筛厂家称其为筛分机、筛粉机、振荡筛等,移动式振动筛采用立式振动电机作为激振源,电机上、下两端安装有偏心重锤,将电机的旋转运动转变为水平、垂直、倾斜的三次元运动,再把这个运动传递给筛面,所以得名三次元移动式振动筛。移动式振动筛可根据客户不同需求从筛面直径400-2000mm、1-5层、304不锈钢及碳钢材质等各种型号齐全,可满足各种粉末、颗粒筛分需要求及液体过滤需求,也可设计为闸门式移动式振动筛、加缘式移动式振动筛等机型。
    移动式振动筛
    移动式振动筛工作原理:
           移动式振动筛利用YZUL立式振动电机作为激振源,通过振动电机上下两端的偏心重锤将旋转运动转变为水平、垂直、倾斜的三次元运动,并传递到移动式振动筛的筛面上;物料通过入料口进入设备内,根据不同物料筛分要求,物料经过1-5层采用不同目数的金属编织筛网的筛分层,在这个过程中,位于各层的筛网下的清网装置(弹跳球)通过频率振动不断撞击筛网,使筛网上层物料能够顺畅的透网筛分,并有效解决了物料堵网问题出现,不同目数的物料通过各层对应目数的筛网后在各层的出料口排出,最终实现筛选除杂或过滤分级的目的。调节上、下两端的相位角,可以改变物料在筛面上的运动轨迹
    移动式振动筛
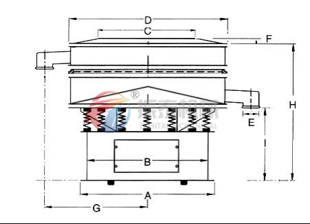
    移动式振动筛技术参数:
    移动式振动筛

    移动式振动筛
     
    移动式振动筛性能特点:
    1、专用立式振动电机为激振源,无机械传动,能效高,易调整,质量可靠,稳定性高。
    2、筛分精度高、效率高,适用筛分过滤各种粉末、颗粒、粘液等物料。
    3、设计精巧耐用,噪音低,可连续作业,物料可360度方向自动排出。
    4、筛网寿命长,更换便捷,规格可任意配置,筛分最细达500目(28μm),过滤最细达5μm。
    5、整机封闭性能好,粉末不飞扬,液体不泄露,可单、多层同时使用,最高可达5层;
    6、部件结构无死角,拆装便捷,易于彻底清洗、消毒。
    移动式振动筛
    移动式振动筛的维护与保养:
    1、移动式振动筛需要定期检查筛网的表面是否有破损,如果有破损需要及时更换,以免造成产品的筛分不合格。。
    2、本机运行初期,每天至少检查地脚螺栓一次,防止松动。
    3、当电机旋转方向不符合要求时,调整电源相序即可。
    4、电机应保证润滑良好,每运行二周左右补充锂基润滑脂(ZL-3)一次,加油时,通过油杯加入适量锂基润滑脂。当采用密封轴承时,电机没有安装油杯。
    5、本机累计运行1500小时后,应检查轴承,若有严重损伤时应立即更换。
    6、本机停置较长时间后再次使用时,应测量绝缘电阻,用于500伏兆欧表测量,应大于0.5兆欧。
    移动式振动筛
    移动式振动筛使用注意事项:
    1、新设备开机前,应先卸下三个扁钢制运输支撑架;
    2、认真检查振动电机、锁紧束环、减震弹簧等部件的牢固程度;
    3、检查移动式振动筛各紧固件,如发现松动,应及时加以紧固;
    4、定期对移动式振动筛各部件连接处、紧固件进行检查,如发现松动,应及时拧紧,避免因设备长期振动导致部件松动引发的噪音大、机件受损,甚至螺钉等异物掉入物料中等情况的发生;
    5、振动电机应按逆时针方向运转;顺时针排料;
    6、应确保物料均匀的进入移动式振动筛,以确保移动式振动筛分精度、产量;
    7、筛选干性物料时,应在进料口和出料口装置连接软管或帆布套,防止出现潜漏或粉尘溢散的问题;
    8、移动式振动筛工作过程中,如出现异常声音,应立即停机检查,排除问题后再开机生产;
    9、加料结束后,让设备继续运行5分钟左右,使筛网和筛底物料全部排干净,避免残余物料还潮,音响下次筛分效果,或因更换物料、目数导致混料的问题;
    10、筛分工作结束后,做好移动式振动筛分设备的清洁;
    移动式振动筛
    移动式振动筛适用范围举例:
    各类粉体行业、任何颗粒、粉末、粘液一定范围内均可筛选、过滤
    化工行业:树脂、涂料、、油漆、洗衣粉、微粉、纯碱、柠檬粉、橡胶、塑料等
    食品行业:糖粉、淀粉、食盐、米粉、奶粉、豆浆、蛋粉、酱油、果汁等。
    医药行业:中药粉、中药液、西药粉、西药液体、中西药颗粒等。
    金属粉末矿业:铝粉、铅粉、铜粉、矿石、合金粉、焊条粉末、二氧化锰、电解铜粉、电磁性材料、研磨粉、耐火材料、高岭土、石灰、氧化铝、重质碳酸钙、石英砂等。
    冶金行业:氧化钛、氧化锌、电磁材料、金属粉末、焊条粉末等。
    磨料、陶瓷行业:氧化铝、石英砂、泥浆、喷雾土粒。
    造纸行业:涂布涂料、白土泥浆、黑白液、废液、造纸液、废水回收。
    环境保护:垃圾、人畜屎尿、废油、食品废水、废水加工等。
    移动式振动筛

    标签:移动式振动筛 移动式旋振筛 移动式振动分级筛 

  • 上一篇:碳酸铵塑料振动筛
  • 下一篇:高锰酸钾振动筛
    • 您可能还想了解的产品:

      您可能还想查阅的文章:

    振动筛快速选型直通车
    Fast type selectionMore..
    热销产品推荐
    Hot ProductsMore..
    新乡市91免费视频网站机械有限公司

    版权所有:新乡市91免费视频网站机械有限公司 豫ICP备38624031号-10

    电话:0373-3337678 3331988 2685892 2685893 24小时专线:13707652168

    Q Q:78238101 传真:0373-2685891 组织机构代码证代码:07136373-0

    地址:新乡市卫滨区工业园 欢迎新老客户来电、来厂咨询指导 营业执照注册号:91410703071363730D

    加91免费视频网站机械微信为好友

    加91免费视频网站机械微信为好友

    随时随地为您提供优质服务

    全国领先的振动筛分机、91免费版网站入口、91免费下载链接等筛分设备供应商。
    网站地图